Ruem Haart 30 - Skandinavisches Ferienhaus Mit Sauna & Kamin
Preview only — see all hotel photos
See all 16 photos
Hotel op de kaart tonen
Ruem Haart 30 - Skandinavisches Ferienhaus Mit Sauna & Kamin
De gesitueerde in Dagebüll Ruem Haart 30 - Skandinavisches Ferienhaus Mit Sauna & Kamin Dagebüll ligt binnen 10-minuten rijafstand van Hauke-Haien-Koog en nodigt gasten uit om toeristische bestemmingen te verkennen.
Dagebull lighthouse is op 1 km verderop gesitueerd. Deze villa bevindt zich ook vrij dicht bij Dagebüll.
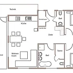
Ruem Haart 30 - Skandinavisches Ferienhaus Mit Sauna & Kamin heeft een badkamer, voorzien van een inloopdouche, een apart toilet en een wasmachine.
Gasten kunnen gebruik maken van een waterkoker, een koelkast en een oven in een kitchenette van dit vakantiehuis. Hotel Neuwarft serveert gerechten uit Duitse keuken en ligt op slechts 350 meter hier vandaan. Vervoersalternatieven in de buurt zijn onder andere de bushalte Dagebuell Nordseesiedlung, binnen slechts 5 rijminuten verderop.
Voorzieningen
Hoofdvoorzieningen
- Wi-Fi
- Kindvriendelijk
- Huisdieren
Faciliteiten
- Roken is niet toegestaan
- WiFi
- Parkeerplaats
- Huisdieren toegestaan
- Elektrische waterkoker
- Tuin
- Wasmachine
- Flat-screen TV
- Ledikanten/ Babybedden
- Parketvloer